Unsere professionellen Brandschutzlösungen
Entdecken Sie unser breites Angebot an Brandschutzservices, die die höchste Qualität und Ihre Sicherheit garantieren. Wir bieten maßgeschneiderte Brandschutzlösungen für die Herausforderungen Ihres Unternehmens.

Prüfung/Wartung von Brandschutztüren und Feststellanlagen
Kontrolle von Brandschutztüren und Feststellanlagen für maximalen Schutz.

Verkauf von Feuerlöschern
Hochwertige Feuerlöscher „Made in Germany“ mit fluorfreien Löschmitteln – sicher, zuverlässig und umweltfreundlich. Außerdem bieten wir Zubehör wie designschöne Kästen an.

Prüfung/Wartung von RWA-Anlagen
Das reibungslose Zusammenspiel aller RWA-Komponenten gewährleistet optimalen Schutz für Mitarbeiter und Gebäude.

Prüfung/Wartung von Wandhydranten, Hydranten und Steigleitungen
Zur sicheren Selbsthilfe und schnellen Brandbekämpfung durch die Feuerwehr zwingend notwendig.

Erstellung von Feuerwehrplänen
Unterstützt die Rettungskräfte beim schnellen Einsatzerfolg und erhöht deren Sicherheit.

Erstellung von Flucht- und Rettungsplänen
Um sich im Notfall zurechtzufinden, sind klare und gut sichtbare Orientierungshilfen wichtig.

Schulungen zum Brandschutzhelfer und Unterweisungen im Umgang mit Feuerlöscher
Geschulte Brandschutzhelfer erkennen Brände frühzeitig, handeln gezielt – und erfüllen zugleich gesetzliche Vorgaben.

Ausstattung mit Erste-Hilfe-Materialien und deren Kontrolle
Bei uns erhalten Sie ausgewählte Erste-Hilfe-Materialien, wie Verbandkästen und Pflasterspender.

Erstellung von Brandabschottungen
Brandabschottungen retten im Ernstfall Leben, indem sie Feuer und Rauch gezielt eindämmen und eine Ausbreitung verhindern.

Verkauf von Hinweisschildern
Kennzeichnen Sie Ihre Brandschutz- und Erste-Hilfe Einrichtungen, Fluchtwege und vieles mehr.

Verkauf von Brandschutz- und Feuerwehrbedarf
Vom Feuerwehrschlauch bis zum Akkulüfter für die Feuerwehr.
Prüfung/Wartung von Feuerlöschern

zweijährige Prüffrist
DIN 14406-4; BetrSichV; ASR A 2.2; DGUV; Prüfanleitung der Hersteller
👨🚒Unsere Brandschutztechniker
sind Sachkundige nach DIN 14406-4 und führen die Wartung von Feuerlöschern aller gängigen Hersteller fachgerecht durch.
Darüber hinaus sind sie befähigte Personen nach TRBS 1203 und können direkt im Anschluss auch die gesetzlich vorgeschriebene Prüfung nach BetrSichV (alle fünf bzw. sechs Jahre) durchführen.
🚐Mit unseren modern ausgestatteten Prüfmobilen kommen wir direkt zu Ihnen ins Unternehmen.
Das bedeutet:
- Ihre Feuerlöscher werden vor Ort geprüft
- Kein Transport in eine Werkstatt notwendig
- Keine Ausfallzeiten Ihrer Geräte
📆Wir übernehmen außerdem die Verwaltung Ihrer Prüfdaten und erinnern Sie rechtzeitig an alle anstehenden Prüftermine. So behalten Sie jederzeit den Überblick und erfüllen zuverlässig alle gesetzlichen Anforderungen.
📝Digitaler Prüfbericht
Nach Abschluss der Arbeiten erhalten Sie einen digitalen Prüfbericht:
- Bis zu 5 Geräte sind im digitalen Lieferschein enthalten.
- Ab 6 Geräten erhalten Sie einen separaten Prüfbericht an die von Ihnen angegebene E-Mail-Adresse (siehe Beispiel unten).
- Der Prüfbericht umfasst eine Seite pro Gerät mit allen relevanten Daten sowie einem Foto des Feuerlöschers.
- Im Anhang finden Sie eine Checkliste der durchgeführten Arbeiten.
- Zur besseren Übersicht enthält der Bericht außerdem eine tabellarische Auflistung aller geprüften Geräte.
📩 Gerne erstellen wir Ihnen ein individuelles Angebot zur Prüfung Ihrer Feuerlöscher.
❓ Bei Fragen stehen wir Ihnen selbstverständlich jederzeit zur Verfügung.
Die Bilder zeigen eine kleine Auswahl, damit Sie sich darunter etwas vorstellen können:















Prüfung/Wartung von Brandschutztüren und Feststellanlagen

einjährige Prüffrist
ASR A 1.7; DIN 14677; Baurecht; Herstellerangaben
👨🚒Unsere Brandschutztechniker
sind Sachkundige nach DIN 14677 und führen die jährlichen Prüfungen Ihrer Brandschutztüren und Feststellanlagen gewissenhaft durch. Dank regelmäßiger Schulungen bei verschiedenen Herstellern sind unsere Techniker berechtigt, die vorgeschriebenen Abnahmeprüfungen rechtssicher vorzunehmen.
🛠 Zu unseren Leistungen gehören:
- Prüfung und Wartung nach Norm und Herstellerangaben
- Einstellarbeiten und kleinere Reparaturen sowie der Austausch von Feststellanlagen-Komponenten
- Durchführung von Abnahmeprüfungen der FSA
📆Wir übernehmen außerdem die Verwaltung Ihrer Prüfdaten und erinnern Sie rechtzeitig an alle anstehenden Prüftermine. So behalten Sie jederzeit den Überblick und erfüllen zuverlässig alle gesetzlichen Anforderungen.
📝Digitaler Prüfbericht
Nach Abschluss der Arbeiten erhalten Sie einen digitalen Prüfbericht:
- Alle wesentlichen Daten der geprüften Türen und Feststellanlagen
- Bilder der Anlagen und Komponenten
- Eine Checkliste aller durchgeführten Arbeiten zur Qualitätssicherung
- Ein Beispiel befindet sich im Anhang
📩 Gerne erstellen wir Ihnen ein individuelles Angebot zur Prüfung oder Abnahme Ihrer Türen und Feststellanlagen.
❓ Bei Fragen stehen wir Ihnen selbstverständlich jederzeit zur Verfügung.
Diese Bildauswahl dient dazu, Ihnen eine Vorstellung davon zu geben:






Brandschutzbeauftragter

regelmäßig / fortlaufend
DGUV I 205-003 ; Sonderbauordnungen; VdS 2001
👨🚒Unsere Brandschutzbeauftragten
haben die Ausbildung nach DGUV I 205-003 und bilden sich regelmäßig fort.
🏭Für viele kleine und mittelständische Unternehmen lohnt es sich nicht, einen eigenen Brandschutzbeauftragten dauerhaft zu beschäftigen. Dennoch schreibt der Gesetzgeber oder Versicherer in vielen Fällen die Benennung vor – und auch unabhängig von Vorschriften ist ein wirksamer Brandschutz entscheidend für die Sicherheit von Mitarbeitern, Kunden und Sachwerten.
Hier bietet ein externer Brandschutzbeauftragter die ideale Lösung: Sie erhalten umfassende Fachkompetenz, ohne interne Ressourcen binden zu müssen.
✅Ihre Vorteile auf einen Blick:
- Kosteneffizienz: Sie bezahlen nur für die tatsächlich benötigte Betreuung – keine Fixkosten für einen internen Mitarbeiter.
- Fachkompetenz nach Bedarf: Regelmäßige Schulungen und Weiterbildungen sichern aktuelles Fachwissen.
- Unabhängigkeit und Neutralität: Externe Beauftragte beurteilen objektiv und ohne Betriebsblindheit.
- Flexibilität: Betreuung nach Bedarf – von jährlicher Begehung bis zu kürzeren Abständen, je nach Gefährdungslage oder Kundenwunsch.
📝Unsere Leistungen:
🚒🧯🔎Wir führen in der Regel eine jährliche Brandschutzbegehung durch. Abhängig von der Gefährdungslage oder Ihrem individuellen Wunsch sind selbstverständlich auch kürzere Intervalle möglich.
Im Anschluss an jede Begehung erstellen wir einen detaillierten Bericht über den aktuellen Stand des Brandschutzes.
Werden dabei Mängel festgestellt, erhalten Sie von uns – soweit fachlich möglich – ein maßgeschneidertes Angebot zur Beseitigung dieser.
Das kann beispielsweise die Ausbildung von Brandschutzhelfern, die Berechnung der erforderlichen Löschmitteleinheiten oder weitere konkrete Maßnahmen betreffen.
So stellen wir sicher, dass Ihr Unternehmen nicht nur die gesetzlichen Anforderungen erfüllt, sondern auch im Ernstfall bestens vorbereitet ist.
❓ Bei Fragen stehen wir Ihnen selbstverständlich jederzeit zur Verfügung.
Gerne unterbreiten wir Ihnen ein Angebot.
Feuerlöscher & Zubehör – Qualität die überzeugt

ArbStättV; Baurecht; ASR A 2.2; EN 3; DGUV I 205-001; Versicherer
Wenn es um Brandschutz geht, sollten Sie keine Kompromisse eingehen. Wir bieten Ihnen ausschließlich hochwertige Industriefeuerlöscher „Made in Germany“, die sich durch höchste Zuverlässigkeit, lange Lebensdauer und geprüfte Qualität auszeichnen. Diese Geräte sind mit Baumarktprodukten nicht vergleichbar – weder in Leistung noch in Haltbarkeit.
💪Mehr Leistung – weniger Geräte
Ein Beispiel: Unser 6-kg-Pulverfeuerlöscher erreicht eine Löschleistung von 15 LE. Im Vergleich zu günstigen Standardlösungen werden dadurch weniger Feuerlöscher benötigt, um die Grundausstattung nach ASR A2.2 zu erfüllen. Das bedeutet für Sie:
- geringere Anschaffungskosten,
- weniger Aufwand und Kosten bei der regelmäßigen Wartung,
- zugleich eine höhere Löschsicherheit im Ernstfall.
Unsere Feuerlöscher haben eine Lebensdauer von bis zu 25 Jahren – eine Investition, die sich langfristig bezahlt macht.
♻🌍Nachhaltig und modern
Unsere Schaumfeuerlöscher sind standardmäßig mit fluorfreien Löschmitteln ausgestattet. Damit sind sie nicht nur besonders effizient, sondern auch umweltfreundlich und nachhaltig.
🛒Breites Sortiment & Zubehör
Wir liefern Feuerlöscher in allen Größen – von 2 kg/Liter bis 250 kg/Liter – passend für jede Anwendung und Branche. Ergänzend dazu bieten wir Ihnen funktionales und optisch ansprechendes Zubehör, zum Beispiel:
- elegante Design-Kästen für Büros und öffentliche Bereiche,
- robuste Transportkästen für LKW und Nutzfahrzeuge,
- weiteres Zubehör für die sichere und normgerechte Unterbringung.
💡Beratung, die den Unterschied macht
Neben den Produkten legen wir großen Wert auf eine kompetente Beratung. Wir unterstützen Sie bei der Auswahl des richtigen Löschmittels, erklären die jeweiligen Vor- und Nachteile und finden gemeinsam die optimale Lösung für Ihren Bedarf.
✅Unser Qualitätsversprechen
Wir vertreiben nur ausgewählte Geräte, die wir selbst auf Herz und Nieren geprüft haben. Das macht uns besonders:
- hochwertige Produkte,
- fachkundige Beratung,
- und die Sicherheit, dass Sie ausschließlich geprüfte und zuverlässige Geräte erhalten.
Natürlich sind wir damit nicht immer die günstigsten Anbieter – doch im Gegensatz zu vielen Internetangeboten garantieren wir Ihnen Qualität, Sicherheit und persönlichen Service, auf den Sie sich im Ernstfall verlassen können.
📝Bei Bedarf bieten wir Ihnen eine Beratung und Planung für die Ausrüstung mit Feuerlöschern, nach ArbStättV, ASR A2.2, DIN 14406, DGUV I 205-001 und weiteren berufsgenossenschaftlichen und sonstigen Regeln.
📩 Gerne erstellen wir Ihnen ein individuelles Angebot.
❓ Bei Fragen stehen wir Ihnen selbstverständlich jederzeit zur Verfügung.
Die gezeigten Fotos stellen nur einen kleinen Auszug unseres Angebots dar:













Prüfung/Wartung von natürlichen Rauch- und Wärmeabzugsanlagen

einjährige Prüffrist
DIN 18232; Herstellerangaben; Baurecht; Versicherer
👨🚒Unsere Brandschutztechniker
sind Sachkundige für natürliche Rauch- und Wärmeabzugsanlagen (RWA) und führen die jährlich vorgeschriebenen Prüfungen Ihrer Anlagen sorgfältig und fachgerecht durch.
Dank regelmäßiger Schulungen bei verschiedenen Anbietern bleiben unsere Techniker stets auf dem aktuellen Stand der Normen und Richtlinien.
🛠 Zu unseren Leistungen gehören:
- Jährliche Inspektion und Funktionsprüfung Ihrer natürlichen RWA-Anlagen nach Norm und Herstellerangaben
- Wartung und Instandsetzung von RWA-Komponenten (z. B. Auslöseknöpfe, Zuluftöffnungen, Zylinder, Verriegelungen)
- Prüfung der Energieversorgung (Netz- und Notstrombetrieb)
- Überprüfung der manuellen und automatischen Auslöseeinrichtungen
- Beratung bei Nachrüstungen oder Modernisierungen Ihrer RWA-Systeme
- Reparatur Austausch und Erneuerung von Komponenten und Anlagen
📆 Wir übernehmen außerdem die Verwaltung Ihrer Prüfdaten und erinnern Sie rechtzeitig an alle anstehenden Prüftermine. So behalten Sie jederzeit den Überblick und erfüllen zuverlässig alle gesetzlichen Anforderungen.
📝Digitaler Prüfbericht
Nach Abschluss der Arbeiten erhalten Sie einen digitalen Prüfbericht:
- Alle wesentlichen Daten der geprüften Anlagen
- Bilder der Anlagen und Komponenten
- Eine Checkliste aller durchgeführten Arbeiten zur Qualitätssicherung
- Der Prüfbericht enthält am Ende eine detaillierte Übersicht aller geprüften Geräte inklusive der zugehörigen Prüfergebnisse, um eine strukturierte Dokumentation sicherzustellen.
- Ein Beispiel befindet sich im Anhang
📩 Gerne erstellen wir Ihnen ein individuelles Angebot zur Prüfung oder Abnahme Ihrer Türen und Feststellanlagen.
❓ Bei Fragen stehen wir Ihnen selbstverständlich jederzeit zur Verfügung.
Diese Fotos sollen Ihnen einen visuellen Eindruck vermitteln:




Prüfung/Wartung von Wandhydranten, Hydranten und Steigleitungen

einjährige Prüffrist
DIN EN 671-3; DIN 14462; Baurecht; Herstellerangaben
👨🚒Unsere Brandschutztechniker
sind befähigte Personen nach DIN EN 671-3 sowie Sachkundige nach DIN 14462 und führen die jährlichen Prüfungen Ihrer Hydranten gewissenhaft durch.
🛠 Zu unseren Leistungen gehören:
- Sicht- und Funktionsprüfung nach Herstellerangaben und Normen
- Druck- und Dichtheitsprüfung
- Messung des Fließdrucks und der Durchflussmenge
- Unterstützung bei Instandsetzungsmaßnahmen
📆 Wir übernehmen außerdem die Verwaltung Ihrer Prüfdaten und erinnern Sie rechtzeitig an alle anstehenden Prüftermine. So behalten Sie jederzeit den Überblick und erfüllen zuverlässig alle gesetzlichen Anforderungen.
📝Digitaler Prüfbericht
Nach Abschluss der Arbeiten erhalten Sie einen digitalen Prüfbericht:
- Alle wesentlichen Daten der geprüften Anlage und der einzelnen Geräte
- Bilder der Anlagen und Komponenten
- Eine Checkliste aller durchgeführten Arbeiten zur Qualitätssicherung
- Ein Beispiel befindet sich im Anhang
📩 Gerne erstellen wir Ihnen ein individuelles Angebot zur Prüfung oder Abnahme Ihrer Türen und Feststellanlagen.
❓ Bei Fragen stehen wir Ihnen selbstverständlich jederzeit zur Verfügung
Diese Fotos sollen Ihnen einen visuellen Eindruck vermitteln:










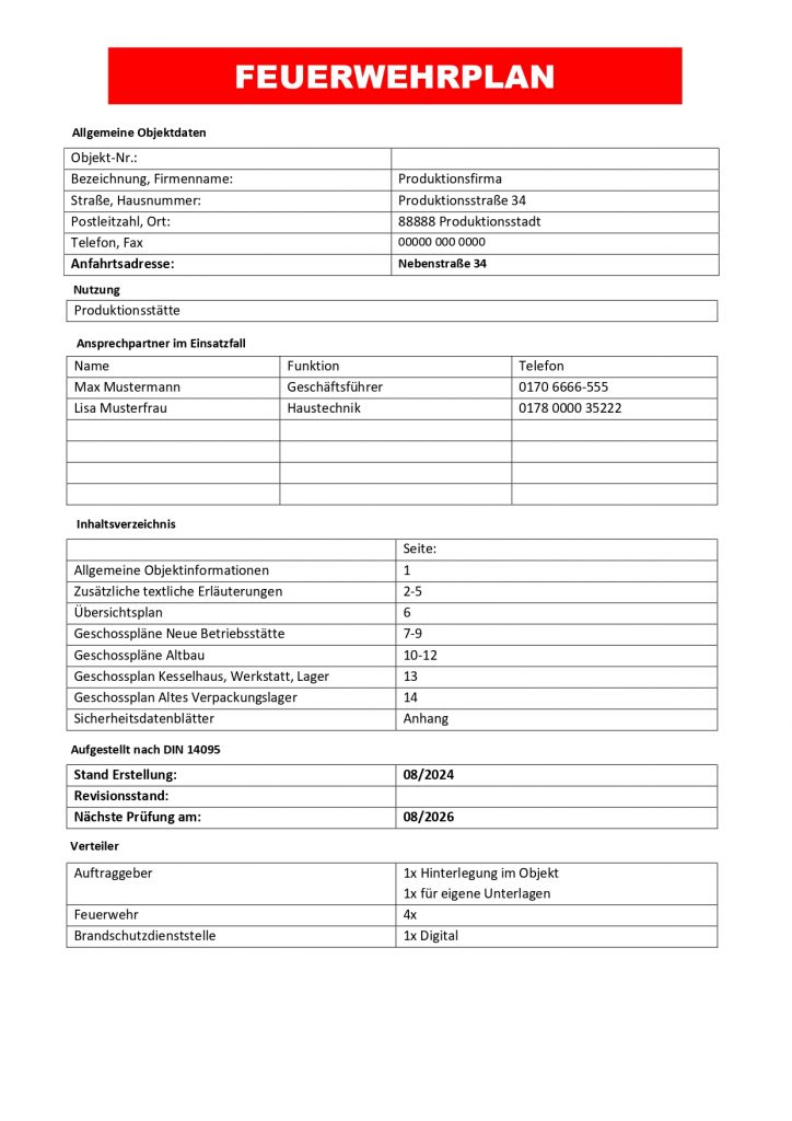
Erstellung von Feuerwehrplänen

zweijährige Prüffrist; bei Änderungen
DIN 14095; Brandschutzkonzept; Baurecht; Sachversicherer;
📄🔥Warum Feuerwehrpläne wichtig sind
Feuerwehrpläne sind mehr als nur eine gesetzliche Vorschrift – sie sind ein entscheidender Bestandteil eines funktionierenden Brandschutzkonzepts.
Im Einsatzfall zählt jede Sekunde: Ein gut erstellter Feuerwehrplan ermöglicht den Einsatzkräften eine schnelle Orientierung, zeigt Gefahrenstellen, Löschwasserentnahmestellen, Rettungswege und Zugänge auf – und trägt so maßgeblich zur Sicherheit von Menschen und Sachwerten bei.
👨🚒Unsere Pläne werden von fachkundigen Mitarbeitern gemäß DIN 14095 ausgearbeitet
Jeder unserer Planersteller ist mindestens Zugführer der Freiwilligen Feuerwehr und kennt die Anforderungen aus praktischer Einsatzsicht genau.
So entstehen praxisorientierte Feuerwehrpläne, die nicht nur den Normen entsprechen, sondern im Ernstfall wirklich helfen.
✅Ihre Vorteile auf einen Blick:
- Praxisnahe Umsetzung – durch erfahrene Feuerwehrleute mit Einsatzerfahrung
- Fachkundige Erstellung nach DIN 14095
- Rechtssichere, übersichtliche und aktuelle Pläne
- Schnelle Bearbeitung & persönliche Betreuung
- Langfristige Sicherheit durch regelmäßige Aktualisierungen
📝Unsere Leistungen:
Unsere Leistungen rund um die Erstellung von Feuerwehrplänen umfassen den gesamten Prozess – von der ersten Bestandsaufnahme bis zur fertigen Übergabe der genehmigungsfähigen Pläne.
Wir erstellen Feuerwehrpläne gemäß DIN 14095 und berücksichtigen dabei alle aktuellen Vorgaben der örtlichen Brandschutzdienststellen. Zu Beginn führen wir eine detaillierte Objektbegehung vor Ort durch, um sämtliche relevanten Gebäudedaten und Besonderheiten aufzunehmen. Anschließend erfolgt die präzise Erstellung der Pläne, die alle wichtigen Informationen wie Zugänge, Rettungswege, Gefahrenstellen und Löschwasserversorgung übersichtlich darstellen.
Selbstverständlich übernehmen wir auch die Abstimmung mit den zuständigen Feuerwehren und Brandschutzbehörden, um eine reibungslose Abnahme sicherzustellen.
Darüber hinaus bieten wir die Überarbeitung und Aktualisierung bereits bestehender Feuerwehrpläne an, falls sich bauliche Gegebenheiten oder Nutzungen geändert haben. Auf Wunsch führen wir regelmäßige Kontrollen durch, um die Aktualität und Gültigkeit der Pläne dauerhaft sicherzustellen.
Die fertigen Unterlagen stellen wir Ihnen sowohl digital (z. B. als PDF ) als auch in gedruckter Form (auf Wasser- und Reißfestem Spezialpapier) zur Verfügung – praxisgerecht und einsatzbereit für den Ernstfall.
So stellen wir sicher, dass Ihr Unternehmen nicht nur die gesetzlichen Anforderungen erfüllt, sondern auch im Ernstfall bestens vorbereitet ist.
❓ Bei Fragen stehen wir Ihnen selbstverständlich jederzeit zur Verfügung.
👉📃Gerne unterbreiten wir Ihnen ein Angebot , bitte senden Sie uns Ihre Anforderungen (Genehmigte Baugenehmigung Text- und Grundrisse, Brandschutzkonzept falls vorhanden, Grundrisse als PDF, DWG oder eingescannt) zu, damit wir Ihnen ein realistisches Angebot erstellen können.
Diese Bildauswahl dient dazu, Ihnen eine Vorstellung davon zu geben:






Erstellung von Flucht- und Rettungswegplänen

fortlaufend; bei Änderungen
ASR 2.3; DIN ISO 23601; Brandschutzkonzept; Baurecht; DGUV
⬅🏃♂️🚨Warum Flucht- und Rettungspläne wichtig sind
Um sich im Notfall zurechtzufinden, sind klare und gut sichtbare Orientierungshilfen wichtig.
Flucht- und Rettungspläne sind daher weit mehr als nur eine gesetzliche Pflicht – sie sind ein unverzichtbarer Bestandteil des betrieblichen Sicherheitskonzepts.
Sie zeigen auf einen Blick, wo sich Ausgänge, Notausgänge, Erste-Hilfe-Einrichtungen und Feuerlöscheinrichtungen befinden.
Im Ernstfall helfen sie Beschäftigten und Besuchern, den schnellsten und sichersten Weg ins Freie zu finden – und leisten so einen entscheidenden Beitrag zum Schutz von Leben und Gesundheit
👨🚒Unsere Pläne werden von fachkundigen Mitarbeitern gemäß DIN ISO 23601 ausgearbeitet
Jeder unserer Planersteller ist mindestens Brandschutzbeauftragter und kennt die Anforderungen aus praktischer Einsatzsicht genau.
So entstehen praxisorientierte Flucht- und Rettungspläne, die nicht nur den Normen entsprechen, sondern im Ernstfall wirklich helfen.
✅Ihre Vorteile auf einen Blick:
- Praxisnahe Umsetzung – durch erfahrene Brandschutzbeauftragte
- Fachkundige Erstellung nach DIN ISO 23601
- Vor Ort Begehung jedes Objektes
- individuell angepasst – mit zusätzlichen Raumbezeichnungen oder Bereichsmarkierungen für bessere Orientierung und Mehrwert im Alltag.
- Rechtssichere, übersichtliche und aktuelle Pläne
- Schnelle Bearbeitung & persönliche Betreuung
- Langfristige Sicherheit durch regelmäßige Aktualisierungen
📝Unsere Leistungen:
Unsere Leistungen rund um die Erstellung von Flucht- und Rettungsplänen umfassen den gesamten Prozess – von der ersten Bestandsaufnahme bis zur fertigen, einsatzbereiten Montage der Pläne.
Wir erstellen Flucht- und Rettungspläne gemäß den Vorgaben der DIN ISO 23601 sowie der ASR A1.3 / A2.3 und berücksichtigen dabei sämtliche aktuellen gesetzlichen Anforderungen und Sicherheitsrichtlinien.
Während der Erstellung führen wir eine detaillierte Objektbegehung vor Ort durch, um alle relevanten Gebäudedaten, Flucht- und Rettungswege sowie Besonderheiten der Nutzung zu erfassen. Anschließend erfolgt die präzise Erstellung der Pläne, die Fluchtwege, Notausgänge, Sammelstellen, Erste-Hilfe- und Brandschutzeinrichtungen übersichtlich darstellen.
Neben der normgerechten Ausführung berücksichtigen wir auch individuelle Anforderungen unserer Kunden. Auf Wunsch ergänzen wir beispielsweise Raumbezeichnungen oder kennzeichnen in Verkaufsflächen unterschiedliche Bereiche. So dienen die Pläne nicht nur der Sicherheit, sondern bieten auch eine wertvolle Orientierungshilfe für Besucher und einen echten Mehrwert für den Betreiber.
Darüber hinaus übernehmen wir die Überarbeitung und Aktualisierung bestehender Flucht- und Rettungspläne, etwa bei baulichen Veränderungen oder geänderter Nutzung. Auf Wunsch führen wir regelmäßige Kontrollen zur Aktualitätsprüfung durch, um sicherzustellen, dass die Pläne stets den aktuellen Gegebenheiten entsprechen.
Gerne stellen wir die Pläne in verschiedenen Varianten zur Verfügung, vom einlaminierten Plan im Aluminiumklapprahmen bis hin zum auf einer nachleuchtenden PVC Platte.
❓ Bei Fragen stehen wir Ihnen selbstverständlich jederzeit zur Verfügung.
👉📃Gerne unterbreiten wir Ihnen ein Angebot , bitte senden Sie uns Ihre Anforderungen (Genehmigte Baugenehmigung Text- und Grundrisse, Brandschutzkonzept falls vorhanden, Grundrisse als PDF, DWG oder eingescannt) zu, damit wir Ihnen ein realistisches Angebot erstellen können.
Diese Bildauswahl dient dazu, Ihnen eine Vorstellung davon zu geben:







Schulungen zum Brandschutzhelfer und Unterweisung im Umgang mit Feuerlöschern

2-5 Jahre
ArbSchG; ArbStättV; DGUV V 1; ASR A2.2; DGUV I 205-023
🧯🔥Vorbeugen, erkennen, reagieren, richtig handeln im Brandfall
Gut geschulte Mitarbeitende wissen, wie Brände verhindert und Entstehungsbrände sicher bekämpft werden. Unsere praxisnahen Schulungen vermitteln genau das Wissen, das im Ernstfall zählt
👨🚒Von Profis für Profis – Schulungen aus erster Hand
Unsere Schulungen werden von ausgebildeten Brandschutzbeauftragten oder erfahrenen Zugführern der Freiwilligen Feuerwehr durchgeführt.
Sie wissen aus Ihrer Beruflichen- oder Einsatz- Erfahrung genau, worauf es im Ernstfall ankommt – und vermitteln dieses Wissen praxisnah, verständlich und realitätsbezogen. So profitieren Ihre Mitarbeitenden nicht nur von Theorie, sondern von echter Erfahrung aus der Praxis.
✅Ihre Vorteile auf einen Blick:
- Gesetzeskonform & aktuell: Schulungen gemäß DGUV Vorschrift 1, ASR A2.2 und §10 ArbSchG
- Erfahrene Ausbilder: Schulungen durch Brandschutzbeauftragte oder Zugführer der Feuerwehr
- Praxisnah & realistisch: Übungen mit Realitätsgetreuen Übungsfeuerlöschern am gasbetriebenem Brandsimulator
- Effizient & kostenschonend: Zwei Schulungen an einem Tag möglich (je ca. 4 Stunden, bis 20 Teilnehmende)
- Kompakte Unterweisungen: Praktische Feuerlöschertrainings in nur 1,5 Stunden für bis zu 6 Personen
- Direkt bei Ihnen vor Ort: Keine Anfahrt nötig – wir bringen alles mit
📝Unsere Leistungen:
Wir führen unsere Brandschutzhelfer-Schulungen und praktischen Feuerlöscher-Unterweisungen direkt bei Ihnen im Unternehmen durch.
Mit unserem mobilen Schulungsanhänger, ausgestattet mit gasbetriebenem Brandsimulator und allen benötigten Übungslöschern, bringen wir die Ausbildung zu Ihnen – dorthin, wo Ihre Mitarbeitenden arbeiten.
So werden theoretische Inhalte direkt mit praktischen Übungen unter realistischen Bedingungen verknüpft.
Ihre Mitarbeitenden lernen nicht nur, Brände zu vermeiden und im Ernstfall richtig zu reagieren, sondern trainieren den sicheren Umgang mit Feuerlöschern in einer praxisnahen Umgebung.
So stellen wir sicher, dass Ihr Unternehmen nicht nur die gesetzlichen Anforderungen erfüllt, sondern auch im Ernstfall bestens vorbereitet ist.
❓ Bei Fragen stehen wir Ihnen selbstverständlich jederzeit zur Verfügung.
👉📃Gerne unterbreiten wir Ihnen ein Angebot


Ausstattung mit Erste-Hilfe-Materialien und deren Kontrolle

ArbStättV; ASR A 4.3; DGUV I 204-022
Wenn es um Erste-Hilfe geht, sollten Sie keine Kompromisse eingehen. Wir bieten Ihnen ausschließlich hochwertige Erste-Hilfe-Materialien, die sich durch höchste Qualität und lange Lebensdauer Qualität auszeichnen. Diese sind mit Baumarktprodukten nicht vergleichbar – weder in Leistung noch in Haltbarkeit.
🩹⏳Lange Haltbarkeit – geringere Kosten
Die Verbandsstoffe in unseren Erste-Hilfe-Kästen haben eine Haltbarkeit von bis zu 20 Jahren. Das bedeutet für Sie:
- geringere Kosten da der Inhalt nicht alle 5 Jahre ausgetauscht werden muss (wie bei günstigen Herstellern)
- Sie müssen sich weniger Gedanken machen, ob Ihre Verbandsmaterialien noch haltbar sind – Ihre Ausstattung bleibt zuverlässig und einsatzbereit.
- zugleich eine höhere Qualität im Einsatzfall
♻🌍Nachhaltig
Langlebige Produkte reduzieren Abfall und senken Entsorgungs- sowie Lagerkosten – gut für Ihr Budget und die Umwelt
🛒Breites Sortiment & Zubehör
Bei uns erhalten Sie nicht nur Erste-Hilfe-Kästen, sondern auch passende Pflasterspender zur Ergänzung. Diese bieten eine große Auswahl an Pflastern für unterschiedliche Anwendungen – bis hin zu Verbänden und Augenspülungen für kleinere und mittlere Verletzungen im Alltag.
Durch diese Kombination bleibt Ihr Erste-Hilfe-Koffer stets einsatzbereit, und im entscheidenden Moment fehlt kein wichtiger Inhalt
- Immer vollständig ausgerüstet
- Schnelle Hilfe im Alltag
- Weniger Aufwand, mehr Sicherheit:
Mit einem durchdachten System sparen Sie Nachfüll- und Kontrollaufwand und können sich darauf verlassen, dass Ihre Erste-Hilfe-Ausstattung stets einsatzbereit ist.
💡Beratung, die den Unterschied macht
Neben hochwertigen Produkten legen wir großen Wert auf kompetente Beratung. Wir unterstützen Sie bei der Auswahl des passenden Erste-Hilfe-Kastens und Pflasterspenders – und finden gemeinsam die optimale Lösung für Ihren individuellen Bedarf.
✅Unser Qualitätsversprechen
Wir vertreiben nur ausgewählte Materialien. Das macht uns besonders:
- Langlebige Qualität, unsere Erste-Hilfe-Kästen überzeugen durch hochwertige, sterile Materialien mit einer Haltbarkeit von bis zu 20 Jahren (nicht in den Pflasterspendern) – das bedeutet Sicherheit und Wirtschaftlichkeit zugleich
- Die vielseitigen Pflasterspender bieten für jede Situation die passende Lösung – hygienisch, praktisch und schnell zur Hand
- Sorgfältig ausgewählte Markenprodukte, wir setzen ausschließlich auf bewährte Hersteller, die höchste Standards in Qualität, Funktionalität und Sicherheit erfüllen
- Nachhaltig und kostenbewusst, durch langlebige Materialien sparen Sie nicht nur Geld, sondern leisten auch einen Beitrag zur Ressourcenschonung.
Natürlich sind wir damit nicht immer die günstigsten Anbieter – doch im Gegensatz zu vielen Internetangeboten garantieren wir Ihnen Qualität, Sicherheit und persönlichen Service, auf den Sie sich im Ernstfall verlassen können.
📩 Gerne erstellen wir Ihnen ein individuelles Angebot.
❓ Bei Fragen stehen wir Ihnen selbstverständlich jederzeit zur Verfügung
Die gezeigten Fotos stellen nur einen kleinen Auszug unseres Angebots dar.:

(klein)

(klein)


(groß)

(groß)







Erstellung von Brandabschottungen

Leitungsanlagenrichtlinie; Baurecht; Versicherer
👨🚒Unsere Brandschutztechniker
sind vom Hersteller umfassend geschult. Dadurch sind wir berechtigt, Brandabschottungen fachgerecht laut Bauartgenehmigung und gemäß den geltenden Vorschriften herzustellen. Damit Sie sich auf maximale Sicherheit verlassen können.
❗👉 Sicherheit geht vor – wir arbeiten nur nach Zulassung
Unsere Arbeit folgt klaren Regeln: Brandabschottungen führen wir nur aus, wenn sie laut Zulassung erlaubt und fachgerecht machbar sind.
Sind Voraussetzungen nicht erfüllt – wie falsche Leitungen, überfüllte Durchbrüche oder ungeeignete Wandarten – führen wir die Arbeiten nicht durch.
Das ist kein Nein zum Auftrag, sondern ein Ja zu Sicherheit und Qualität.
✅Ihre Vorteile auf einen Blick:
- Herstellergeschulte Fachkräfte: Unsere Brandschutztechniker sind direkt vom Systemhersteller geschult.
- Fachgerechte Ausführung: Alle Brandabschottungen werden gemäß den Zulassungen und Normen hergestellt.
- Dokumentierte Qualität: Jede Ausführung wird nachvollziehbar dokumentiert – für maximale Transparenz und Sicherheit. (Errichterbescheinigung, Zulassung, Lichtbilder)
📩 Gerne erstellen wir Ihnen ein individuelles Angebot.
❓ Bei Fragen stehen wir Ihnen selbstverständlich jederzeit zur Verfügung
Diese Bildauswahl dient dazu, Ihnen eine Vorstellung davon zu geben:




Verkauf von Hinweisschildern

ASR A 1.3, ISO 7010, DIN 4066
🆘🛑🚭Hinweisschilder und Sicherheitskennzeichnung – zuverlässig, normgerecht und langlebig
Wir bieten Ihnen ein umfassendes Sortiment an Hinweisschildern und Sicherheitskennzeichnungen für den professionellen Einsatz in Betrieben, öffentlichen Einrichtungen und Wohngebäuden.
Unser Sortiment umfasst unter anderem:
- Brandschutzzeichen
- Flucht- und Rettungszeichen
- Warn- und Gebotsschilder
- Feuerwehrschilder
- Zubehörschilder wie Erste-Hilfe-Plakate, Feuerlöscherhinweise und viele weitere Sicherheitskennzeichnungen
✅Unser Qualitätsversprechen
Wir vertreiben nur ausgewählte Materialien. Das macht uns besonders:
- Unsere Brandschutz-, Fluchtweg- und Rettungszeichen entsprechen selbstverständlich den geltenden Normen und sind lang nachleuchtend nach Klasse C gemäß DIN 67510. Dies ist laut ASR A1.3 gefordert
- Unsere Brandschutz-, Fluchtweg- und Rettungszeichen sind aus Kunststoff und selbstklebend mit dickem Schaumstoffklebeband und halten somit auch auf leicht unebenen Untergründen.
Natürlich sind wir damit nicht immer die günstigsten Anbieter – doch im Gegensatz zu vielen Internetangeboten garantieren wir Ihnen Qualität, Sicherheit und persönlichen Service, auf den Sie sich im Ernstfall verlassen können.
📩 Gerne erstellen wir Ihnen ein individuelles Angebot.
❓ Bei Fragen stehen wir Ihnen selbstverständlich jederzeit zur Verfügung
Die gezeigten Fotos stellen nur einen kleinen Auszug unseres Angebots dar:










Verkauf von Brandschutz und Feuerwehrbedarf
Wir bieten Ihnen ein umfassendes Sortiment an hochwertigem Brandschutz- und Feuerwehrbedarf für Unternehmen, öffentliche Einrichtungen sowie Feuerwehren.
- Feuerwehrschläuche in verschiedenen Größen und Ausführungen
- Armaturen wie Strahlrohre, Verteiler, Standrohre, Übergangsstücke und Kupplungen
- Lüfter- und Überdruckbelüftungssysteme für eine effiziente Entrauchung
- Geräte, Werkzeug und Ausrüstung für Einsatz und Ausbildung
✅Unser Qualitätsversprechen
Alle Produkte stammen von etablierten Herstellern und sind auf die Anforderungen des realen Einsatzgeschehens ausgelegt.
📩 Gerne erstellen wir Ihnen ein individuelles Angebot.
❓ Bei Fragen stehen wir Ihnen selbstverständlich jederzeit zur Verfügung
Die gezeigten Fotos stellen nur einen kleinen Auszug unseres Angebots dar:





Kontaktaufnahme
2
Planung & Umsetzung
Wir planen die passenden Maßnahmen und führen Wartungen, Prüfungen oder Schulungen durch, um Ihren Brandschutz gesetzeskonform sicherzustellen.
3
Abschluss & Betreuung
Nach erfolgreicher Umsetzung erhalten Sie Prüfberichte und laufende Betreuung, damit Ihr Brandschutz dauerhaft gewährleistet ist.




